产品概述
SZ系列水环真空泵及压缩机是用来抽吸或压缩空气和其它无腐蚀性不溶于水的气体的真空泵,以便在密闭的容器中形成真空和压力。SZ水环式真空泵有SZ-1、SZ-2、 SZ-3及 SZ-4四种规格,泵所形成的最大真空度分别在86~95%之间。SZ-1及 SZ-2所能形成的最大压力为1.0~1.4公斤/厘米2,SZ-3及SZ-4在所配电动机功率容许下的最大压力为1.5公斤/厘米2,若增加电动机功率,最大压力为2.1公斤/厘米2(泵型意义:如SZ-1、S-水环式、Z-真空泵,1-泵的序号)

产品参数
SZ系列水环真空泵的工作原理:

图1 图2
水环式真空泵及压缩机机构图
1.叶轮 2.泵体 3.水环 4.进气管5.吸气孔 6.排气孔 7.排气管a.底脚 b.真空度调节阀门 c.进气管 d. 吸气孔e.橡皮阀 f.排气管 g.排气孔 u.进水孔
SZ水环式真空泵如图1所示,叶轮①偏心地装在泵体②内,起动时向泵内注入一定高度的水,
因此当叶片轮旋转时,水受离心力的作用而在泵体壁上形成-旋转水环③,水环上部内表面与轮毂相切,沿箭头主向旋转,在前半转的过程中,水环内表面逐渐与轮毂脱离,SZ水环式真空泵因此在叶轮叶片间形成空间并逐渐扩大,这样就在吸气口吸入空气;在后半转的过程中,水环的内表面渐渐与轮毂靠近,叶片间的空间容积随着缩小,叶片间的空气因此被压缩而排出。
如此叶轮每转动一周,叶片间的空间容积改变一次,每个叶片间的水好像活塞一样往复一次,SZ水环式真空泵就连续不断地抽吸气体。
由于在工作中,水会发热,同时一部分水会和气体一起被排走,因此SZ水环式真空泵在工作中,泵中必须不断地供给冷水,以冷却和补充泵内消耗的水。供给的冷水以15℃为宜。
当SZ水环式真空泵排出的气体是废气时候,在排气一端接有一水箱,废气和所带的一部分水排入水箱后,气体再由水箱的出管跑掉,而水就落入水箱的底部经回水管再回到泵内使用,如果循环时间长了便会发热,这时需从水箱的供水处供给一定的冷水。
由于在工作中,水会发热,同时一部分水会和气体一起被排走,因此SZ水环式真空泵在工作中必须不断地供给冷水,以冷却和补充泵内消耗的水。
当SZ水环式真空泵排出的气体是废气的时候,在排气一端接有一水箱,废水和所带的一部分水箱后,气体再由水箱的出管跑掉,而水就落入水箱的底部经回水管再回到泵内使用,如果水循环时间长了便会发热,这时需从水箱的供水处供给一定的冷水。
SZ水环式真空泵当压缩机用时则在排气一端要接上一气水分离器,带水的气体进入分离器时便自动分开,气体山分离器的出口送到需要的地方去,而热水则经过自动的开关放出。(压缩气体时容易发热,水由泵处出来后便成了热水),SZ水环式真空泵在分防离器的底部也要不断地供给冷水补充被放走的热水,同时起冷却作用。
SZ系列水环真空泵的结构说明:

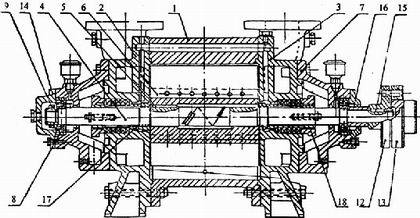
图3
1.泵体 2.后盖 3.前盖 4.泵轴 5.平键 6.叶轮 7.轴承瓦架 8.滚珠轴承 9.园螺母 12.泵联轴器 13.电机联轴器 14.轴承盖 15.键 16.定位圈17.轴套 18.填料压盖

图4
1.泵体 2.后盖 3.前盖 4.泵轴 5.平键 6.叶轮 7.轴承瓦架 8.滚珠轴承 9.园螺母 10.进水管 11.水封管 12.泵联轴器 13.电机联轴器 14.轴承盖 15.键 17.轴套螺母 18.轴套 19.填料涵 20.毛毡圈 21.填料函压盖
SZ真空泵由泵体(1)及两个侧盖(2)(3)所组成(图3及图4)侧盖下部有泵脚(a)支撑(图2),在上部是两管子即进气管(c)和排气管(f),这两个管子通过侧盖上的吸气孔(d)及排所孔(g)与泵腔相连,SZ水环式真空泵体上的进气管与排气管和侧盖上的吸气孔及排气孔相通,轴(4)偏心地安装在泵体中,叶轮(6)用键(5)固定于轴上。叶轮与侧盖之间的间隙,用泵体和侧盖间的垫来调整总间隙,用轴套(17)推动叶轮,从而调整叶轮两端的间隙。此间隙决定气体在泵内由进气口至排气口流动中损失的大小。
SZ真空泵填料函配备在示两侧盖(2)(3)内,在填料后面,有一个水室,水由管子(11)进入此室,一部分水通过填料冷却填料函,另一部分进入泵体,在离心力的作用下沿叶片端面流动而充满于整个叶轮和侧盖之间。
SZ水环真空泵滚珠轴承(8)用圆螺母(9)固定在轴上。
SZ真空泵在侧盖侧壁上(图2)排气孔(g)下面有几行圆孔(e)有橡皮阀(球形)关闭,这些孔的得作用是当时轮叶片间的气体压力达到排气压力时,在排气口以前就将气体自动放出,因此就减少了因气体压力过大而消耗的功率。
SZ-1及SZ-2的结构图(图3)所示,其与SZ-3及SZ-4结构(图4)不同之处是:进、排气管分别在两个侧盖上,一根管与进气口相通,一根管与排气口相通,泵内无橡皮阀。
SZ水环真空泵进气管(10)与气水分离器联在一起供给泵所需要的循环水,为了使泵腔的两端面间隙和填料得到很好的密封,必须由水封管(11)不断地供给干净的冷水。在联轴器端为了不使轴承内油外漏,因此装有毛毡圈(20)来密封。
技术参数:
注:1、SZ水环式真空泵真空度从40%到90%或压力从0.05MPa的吸排气量随着供水量的大小、叶轮与侧盖的间隙
大小而变化,特别是流量较小时,如果调整不准确更容易引起偏小。
2、SZ水环式真空泵表内数值是在下列条件下得出:
①水温15℃
②空气20℃
③气体相对湿度70%
④大气压力0.1013MPa
3、表内性能偏差不超过5%
安装尺寸:

